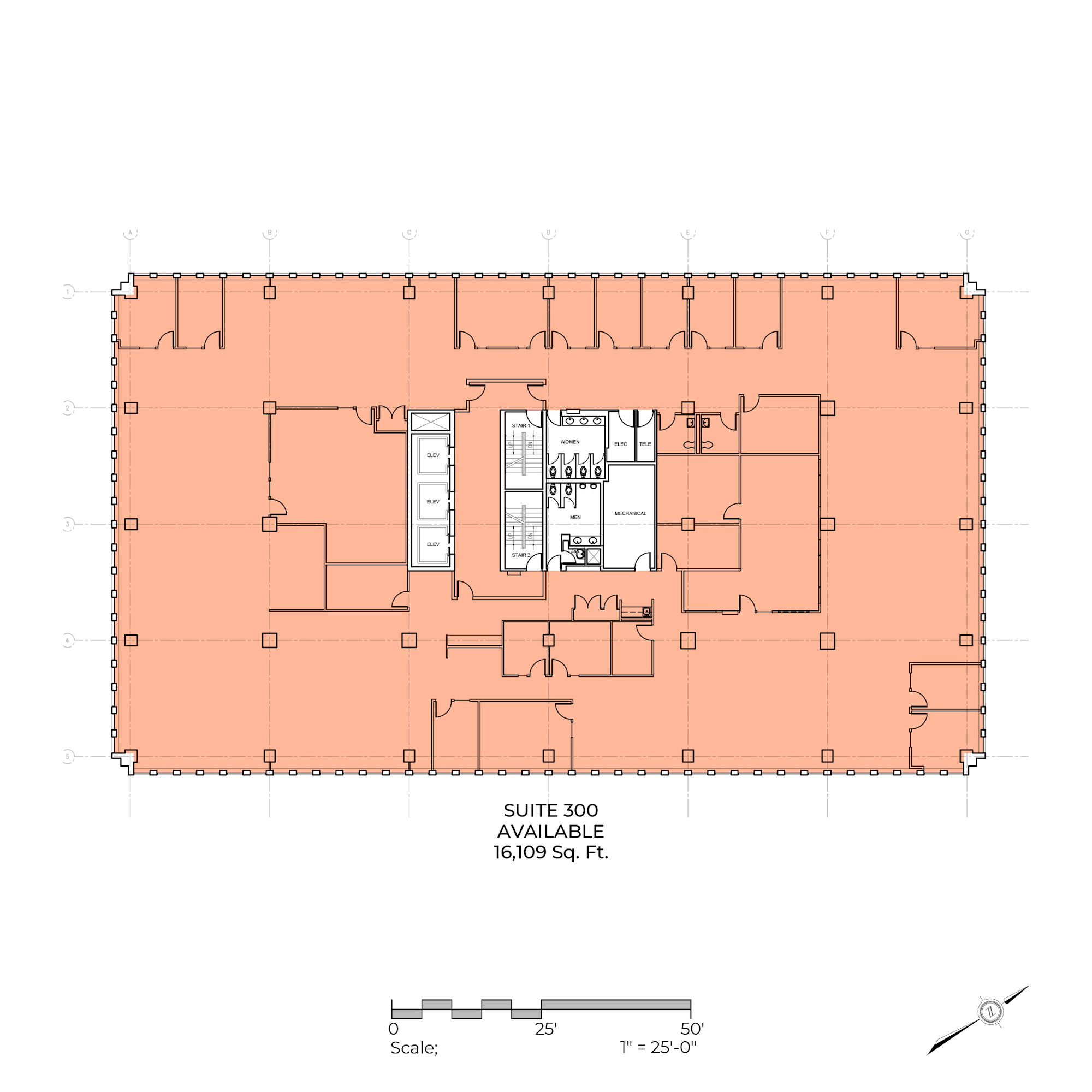
300
50 Queen St. North, Kitchener, ON
16,109 SF
Basic Rent$12.95
Additional Rent
$18.52
Gross Rent Per SF
$31.47
Cost Per Month
$42,245.85
Suite Details
Divisible
Yes
Max Contiguous
16,109
Floor
3
Unit Type
Office
Suite Amenities
Storage Space
Fiber Internet Lines
Warm-Shell Unit
In-Suite Washrooms
Large Window Views
Kitchen/Kitchenette
Direct Elevator Access
Built-Out Unit
Open Concept
Full Floor
Browse Other Units in this Building
Not finding what you're looking for?
Send us your contact information and we’ll get in touch ASAP.







