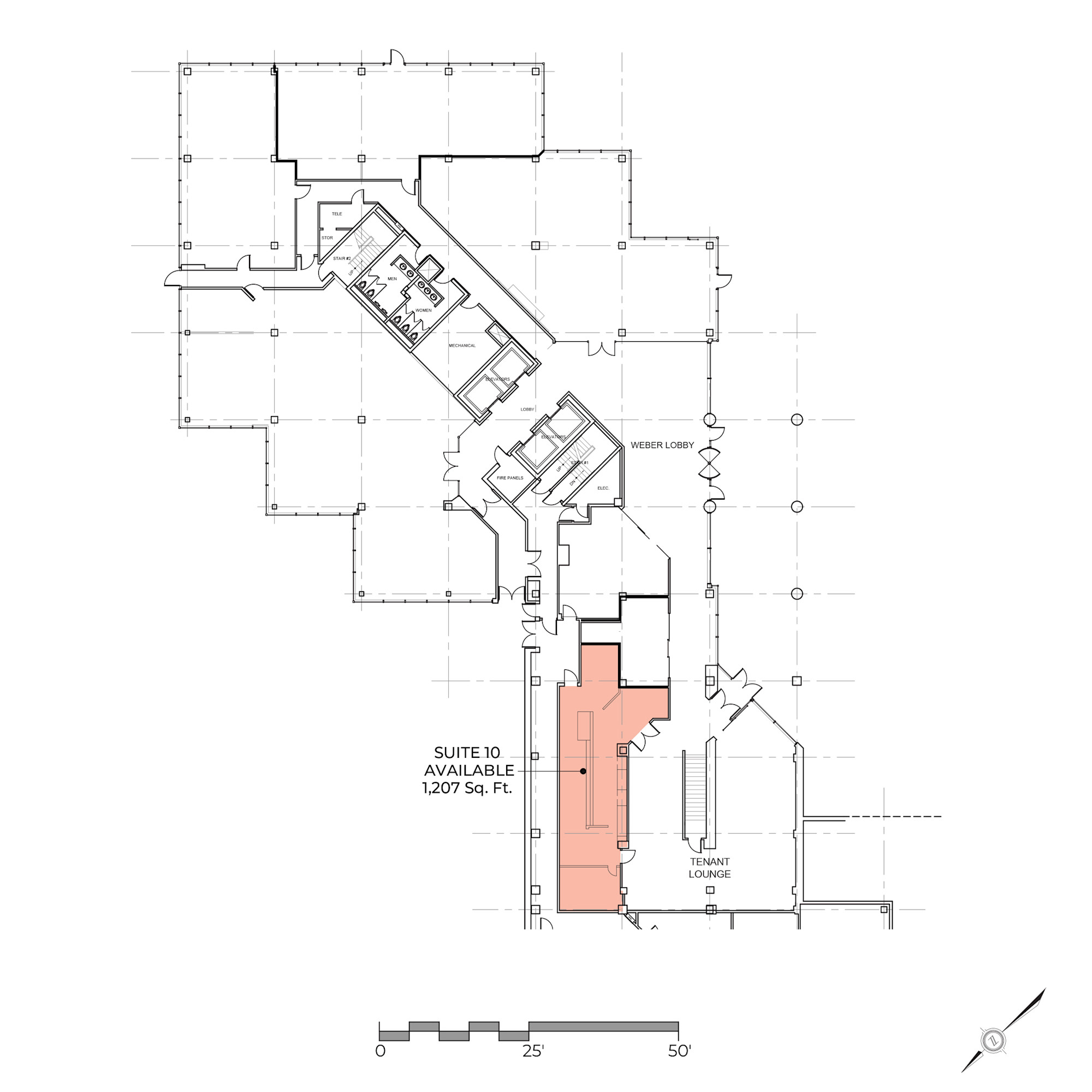
10
The Galleria - Weber, Kitchener, ON
1,207 SF
Basic Rent$15.00
Additional Rent
$19.89
Gross Rent Per SF
$34.89
Cost Per Month
$3,509.35
Suite Details
Floor
1
Unit Type
Retail
Suite Amenities
Existing Food Service Build-Out
Ground Floor
Tall Ceilings
Storage Space
Direct Suite Access
Built-Out Unit
Browse Other Units in this Building
Not finding what you're looking for?
Send us your contact information and we’ll get in touch ASAP.









