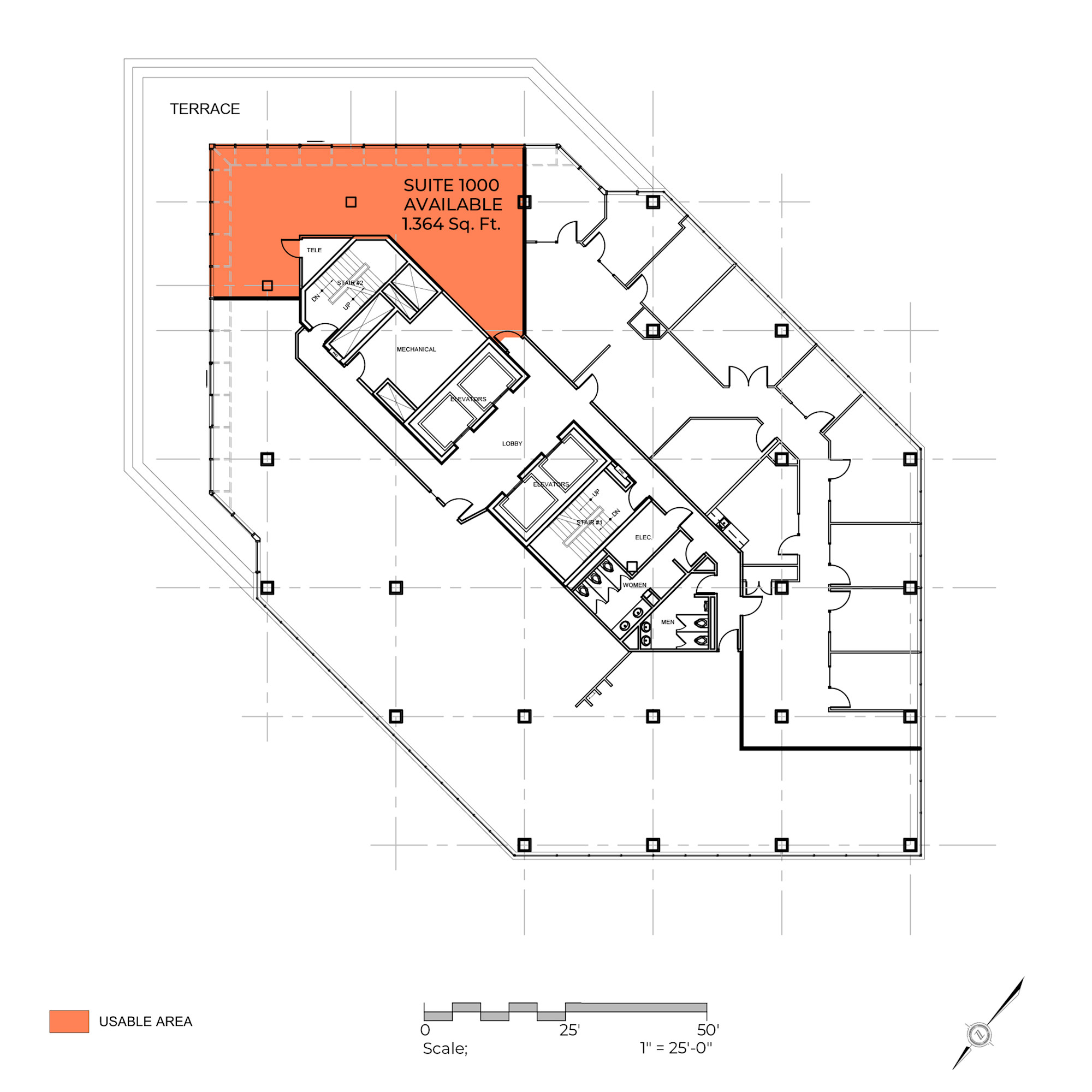
1000
The Galleria - Frederick, Kitchener, ON
1,364 SF
Basic Rent$11.95
Additional Rent
$19.89
Gross Rent Per SF
$31.84
Cost Per Month
$3,619.15
Suite Details
Divisible
No
Max Contiguous
6,214
Floor
10
Unit Type
Office
Suite Amenities
Storage Space
Fiber Internet Lines
Large Window Views
Balcony/Patio Options
Browse Other Units in this Building
Not finding what you're looking for?
Send us your contact information and we’ll get in touch ASAP.









