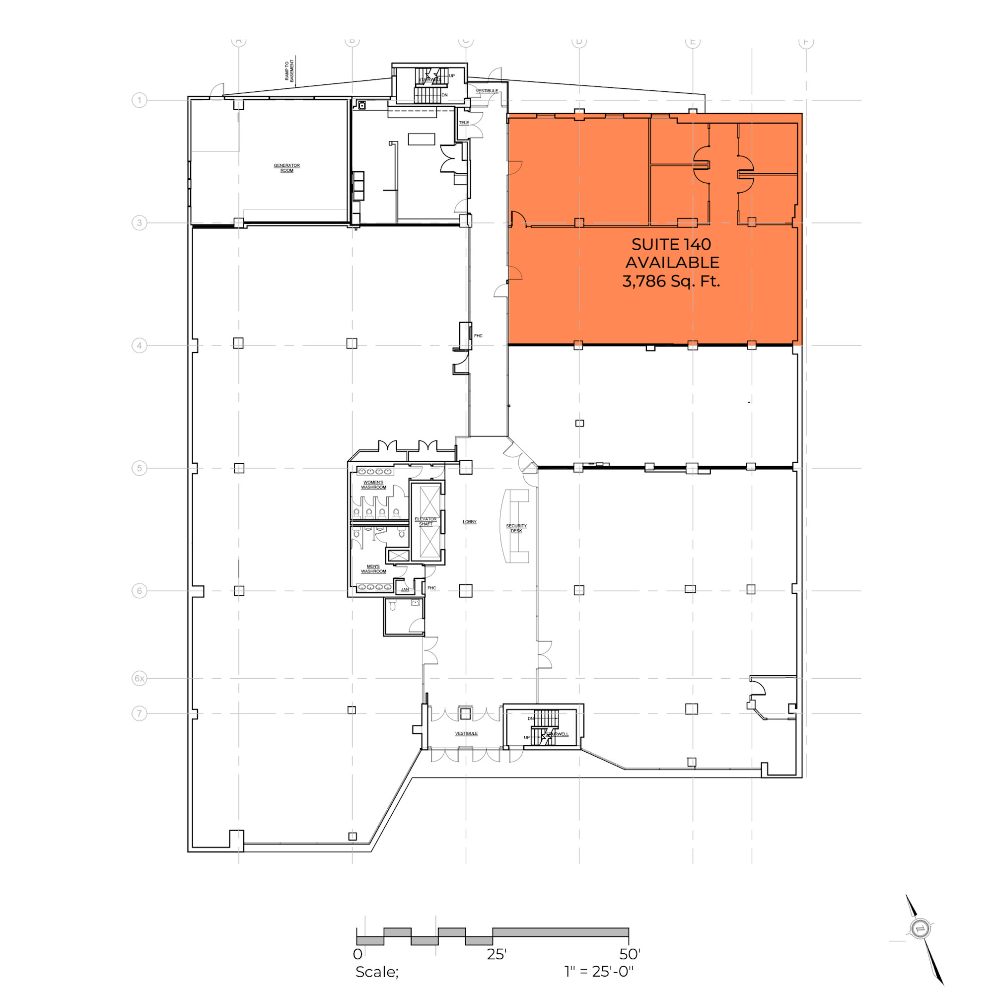
140
235 King St. East, Kitchener, ON
3,786 SF
Basic Rent$12.00
Additional Rent 
$16.51
Gross Rent Per SF 
$28.51
Cost Per Month 
$8,994.91
Suite Details
Divisible
No
Max Contiguous
3,786
Floor
1
Unit Type
Office
Suite Amenities
Storage Space
Fiber Internet Lines
Built-Out Unit
Ground Floor
Browse Other Units in this Building
Not finding what you're looking for?
Send us your contact information and we’ll get in touch ASAP.



