B801
London City Centre, London, ON
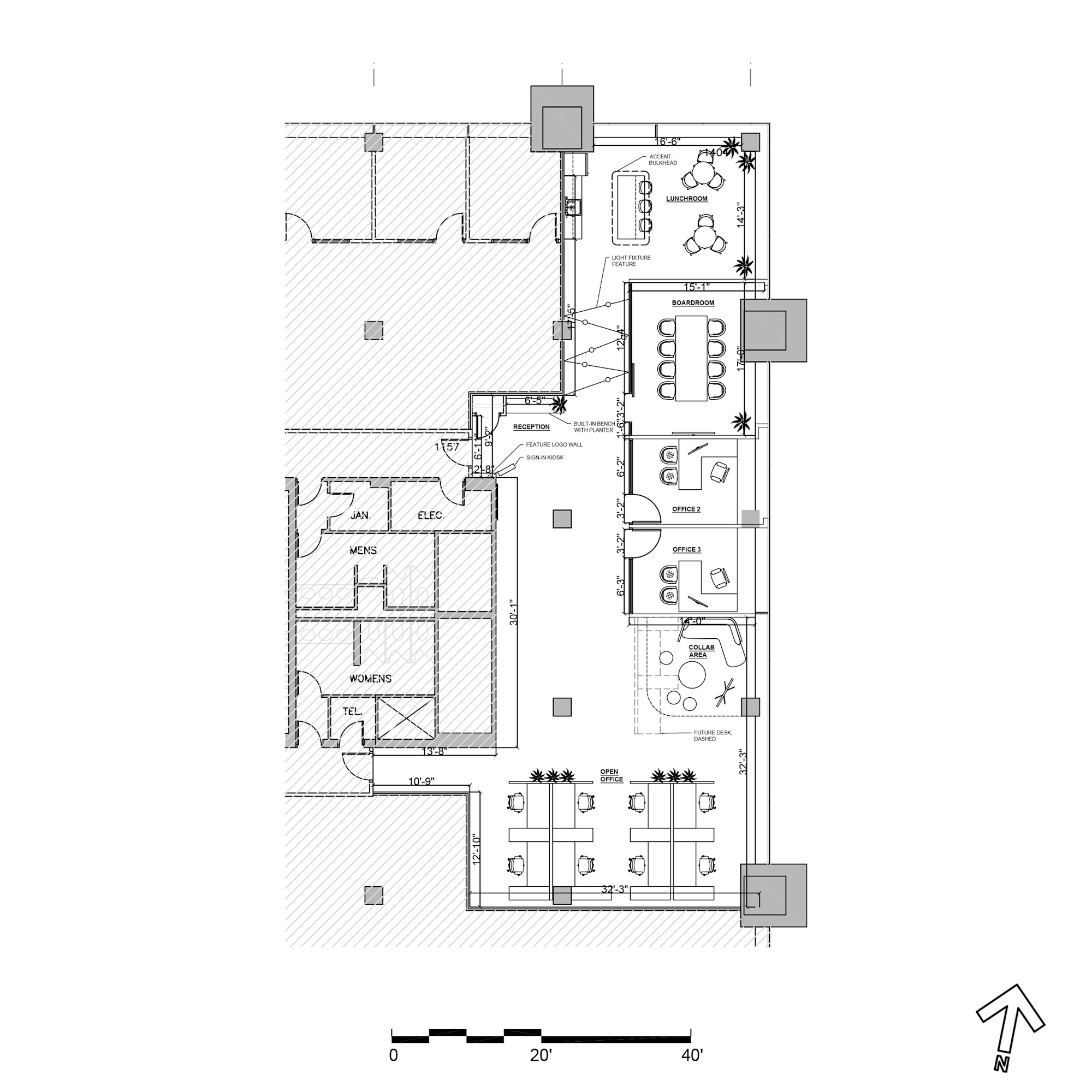
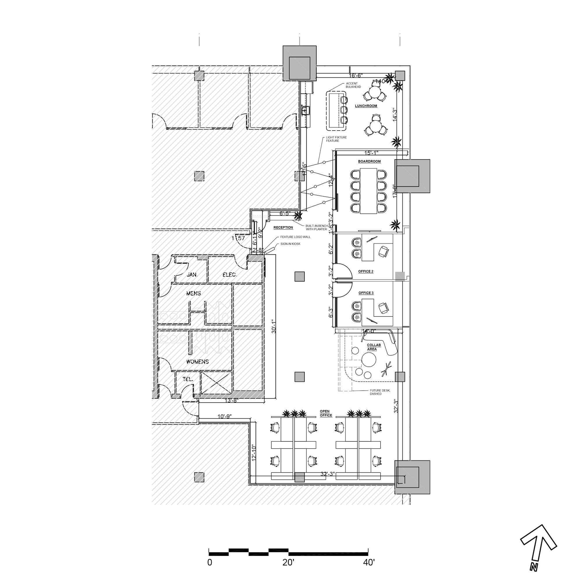
2,998 SF
Basic Rent$14.00
Additional Rent
$16.58
Gross Rent Per SF
$30.58
Cost Per Month
$7,639.90
Suite Details
Divisible
No
Max Contiguous
2,998
Floor
8
Unit Type
Office
Suite Amenities
Storage Space
Fiber Internet Lines
Warm-Shell Unit
Large Window Views
Tall Ceilings
Direct Suite Access
Direct Elevator Access
Unit Security
Browse Other Units in this Building
Not finding what you're looking for?
Send us your contact information and we’ll get in touch ASAP.


















